Yankee ADU's

ADU Modular
Plans

Accessory Dwelling Unit Style Modular Building Plans

Choose from a range of thoughtfully designed modular building plans by Yankee ADU’s, or bring your own custom design to life.

An Accessory Dwelling Unit (ADU) is a secondary housing structure built on the same lot as a primary single-family residence. These units can be detached, attached, or integrated within the main home’s design.

At Yankee ADU’s, we combine innovative design with superior craftsmanship to create modular homes that are efficient, elegant, and built to last.

Our cozy yet functional ADUs enhance your property by providing flexible living spaces that adapt to your needs. Whether used as a home office, guest suite, or rental unit for additional income, each plan offers comfort, efficiency, and style in a compact footprint. These small but sophisticated homes maximize space without compromising design — perfect for creating a peaceful retreat or generating extra revenue.

imgi_10_4316-front-facade-color imgi_11_4316floorplan imgi_10_4316-front-facade-color imgi_11_4316floorplan imgi_10_4316-front-facade-color imgi_11_4316floorplan

4316 Accessory Dwelling Unit

Specification

Square Foot        892
Bedrooms           2
Bathrooms          1.5
Levels              1

Discover the perfect blend of comfort and convenience in this 2-bedroom, 1.5-bathroom ADU. Ideal for a small family, roommates, or as a private in-law suite. This home offers the feel of a larger home with all the benefits of a compact, low-maintenance, up-to-date space.

imgi_14_4469-front-facade imgi_15_4469-floorplan imgi_14_4469-front-facade imgi_15_4469-floorplan imgi_14_4469-front-facade imgi_15_4469-floorplan

4469 Accessory Dwelling Unit

Specification

Square Foot        496
Bedrooms          1
Bathrooms          1
Levels              1

A humble cottage is a perfect space to offer additional guests or a renter some privacy. 

imgi_16_4474-frontfacade imgi_17_4474-FloorPlan imgi_16_4474-frontfacade - Copy imgi_17_4474-FloorPlan imgi_16_4474-frontfacade imgi_17_4474-FloorPlan - Copy

4474 Accessory Dwelling Unit

Specification

Square Foot        784
Bedrooms          1
Bathrooms          1
Levels              1

A centered front entrance from the porch invites entry into this stylish ADU. The smartly designed home features a center island and pantry with plenty of kitchen storage and functionality for those who love to cook. A bump-out in the living room brings in some additional light and creates a warm space for entertaining with its connection to the kitchen.

imgi_20_Gardiner-ADU-front-facade imgi_22_Gardiner-ADU-floorplan2 imgi_21_Gardiner-ADU-floorplan imgi_20_Gardiner-ADU-front-facade imgi_22_Gardiner-ADU-floorplan2 imgi_21_Gardiner-ADU-floorplan imgi_20_Gardiner-ADU-front-facade imgi_22_Gardiner-ADU-floorplan2 imgi_21_Gardiner-ADU-floorplan

Gardiner Accessory Dwelling Unit

Specification

Square Foot        780
Bedrooms          2
Bathrooms          1
Levels              2

Our charming two-car garage, complete with a cozy apartment above, offers wonderful flexibility for various uses. Whether you envision it as a guest suite, a home office, a personal retreat, or a rental apartment, this well-appointed property is sure to enhance the value of your home. With one side dedicated to sleeping and bathing in its two inviting bedrooms, and the other half featuring a lovely kitchen and living space, it’s designed to suit your needs beautifully!

imgi_23_ADU-Harbor-Ranch-front2 imgi_24_ADU-harborRanch-floor1 imgi_23_ADU-Harbor-Ranch-front2 - Copy imgi_24_ADU-harborRanch-floor1 imgi_23_ADU-Harbor-Ranch-front2 imgi_24_ADU-harborRanch-floor1

Harbor Accessory Dwelling Unit

Specification

Square Foot        708
Bedrooms          2
Bathrooms          1
Levels             1

The Harbor Cottage is an inviting two-bedroom, one-bath retreat that boasts elegant nine-foot ceilings, creating an airy and spacious feel throughout the home. The highlight of this charming floorplan is the expansive sunroom, flooded with natural light, perfect for cozy mornings or relaxing afternoons. Its compact yet functional layout makes it an excellent choice for a seasonal escape, a potential income-generating rental, or a comfortable in-law suite.

imgi_25_ADU-HiddenPond-FrontFacade imgi_26_ADU-Hidden-Pond-1floor2 imgi_25_ADU-HiddenPond-FrontFacade - Copy imgi_26_ADU-Hidden-Pond-1floor2 imgi_25_ADU-HiddenPond-FrontFacade imgi_26_ADU-Hidden-Pond-1floor2 - Copy

Hidden Pond Accessory Dwelling Unit

Specification

Square Foot        675
Bedrooms          2
Bathrooms          2
Levels             1

The Hidden Pond plan showcases a thoughtfully designed open area that seamlessly combines the living, dining, and kitchen spaces, maximizing the efficiency of the compact layout. The home features two bedrooms, each complemented by a full bathroom for additional privacy and convenience. Notably, one of the bathrooms includes an exterior entrance, allowing easy access from the yard, making it a practical addition for enjoying the outdoors without tracking it inside.

imgi_27_Marblehead-ADU-front-facade imgi_29_Marblehead-ADU-floorplan2 imgi_28_Marblehead-ADU-Floorplan imgi_27_Marblehead-ADU-front-facade - Copy imgi_29_Marblehead-ADU-floorplan2 imgi_28_Marblehead-ADU-Floorplan imgi_27_Marblehead-ADU-front-facade imgi_29_Marblehead-ADU-floorplan2 - Copy imgi_28_Marblehead-ADU-Floorplan - Copy

Marblehead Accessory Dwelling Unit

Specification

Square Foot        884
Bedrooms          2
Bathrooms          2
Levels             2

Imagine a charming three-bay garage that features a cozy two-bedroom, two-bathroom apartment, accessible through a private interior staircase at the back. This pleasant retreat offers a perfect blend of comfort and flow, ensuring it meets all the essentials for a truly inviting living experience.

imgi_30_Nantucket-ADU-front-facade imgi_32_Nantucket-ADU-floorplan-2 imgi_31_Nantucket-ADU-floorplan imgi_30_Nantucket-ADU-front-facade - Copy imgi_32_Nantucket-ADU-floorplan-2 imgi_31_Nantucket-ADU-floorplan imgi_30_Nantucket-ADU-front-facade imgi_32_Nantucket-ADU-floorplan-2 - Copy imgi_31_Nantucket-ADU-floorplan - Copy

Nantucket Accessory Dwelling Unit

Specification

Square Foot        728
Bedrooms          1
Bathrooms          1
Levels             2

This charming two-car garage, complete with a cozy apartment above, offers all the comforts of a larger home while keeping a smaller footprint. The ground-floor breezeway provides easy access to the stairs above and serves as a wonderful mudroom, ensuring the apartment stays clean and welcoming. You’ll fall in love with the spacious eat-in kitchen that features a pantry, island, and ample cabinet storage, making it the heart of this lovely one-bedroom retreat. This apartment is truly perfect for anyone who enjoys the art of cooking! 

imgi_33_ADU-Orchid-Bay-front-color imgi_34_ADU-Orchid-Bay-floor1 imgi_33_ADU-Orchid-Bay-front-color - Copy imgi_34_ADU-Orchid-Bay-floor1 imgi_33_ADU-Orchid-Bay-front-color imgi_34_ADU-Orchid-Bay-floor1

Orchid Bay Accessory Dwelling Unit

Specification

Square Foot        712
Bedrooms          2
Bathrooms          1
Levels             1

The Orchid Bay cottage is compact yet fully equipped with all the essentials, plus a few extra features. It is an ideal choice for a retreat or for anyone looking to embrace a minimalist lifestyle. The den can serve multiple purposes, functioning as an office, a reading space, or even a second bedroom. A sunroom at the front of the cottage offers a perfect spot for those who enjoy bringing the outdoors inside, allowing ample natural light and space for house plants. Additionally, a covered exterior porch provides a lovely seating area for observing nature and enjoying fresh air.

imgi_35_ADU-Ranch-front imgi_36_ADU-Ranch-1floor2 imgi_35_ADU-Ranch-front - Copy imgi_36_ADU-Ranch-1floor2 imgi_35_ADU-Ranch-front imgi_36_ADU-Ranch-1floor2 - Copy

Ranch Accessory Dwelling Unit

Specification

Square Foot        712
Bedrooms          2
Bathrooms          1
Levels             1

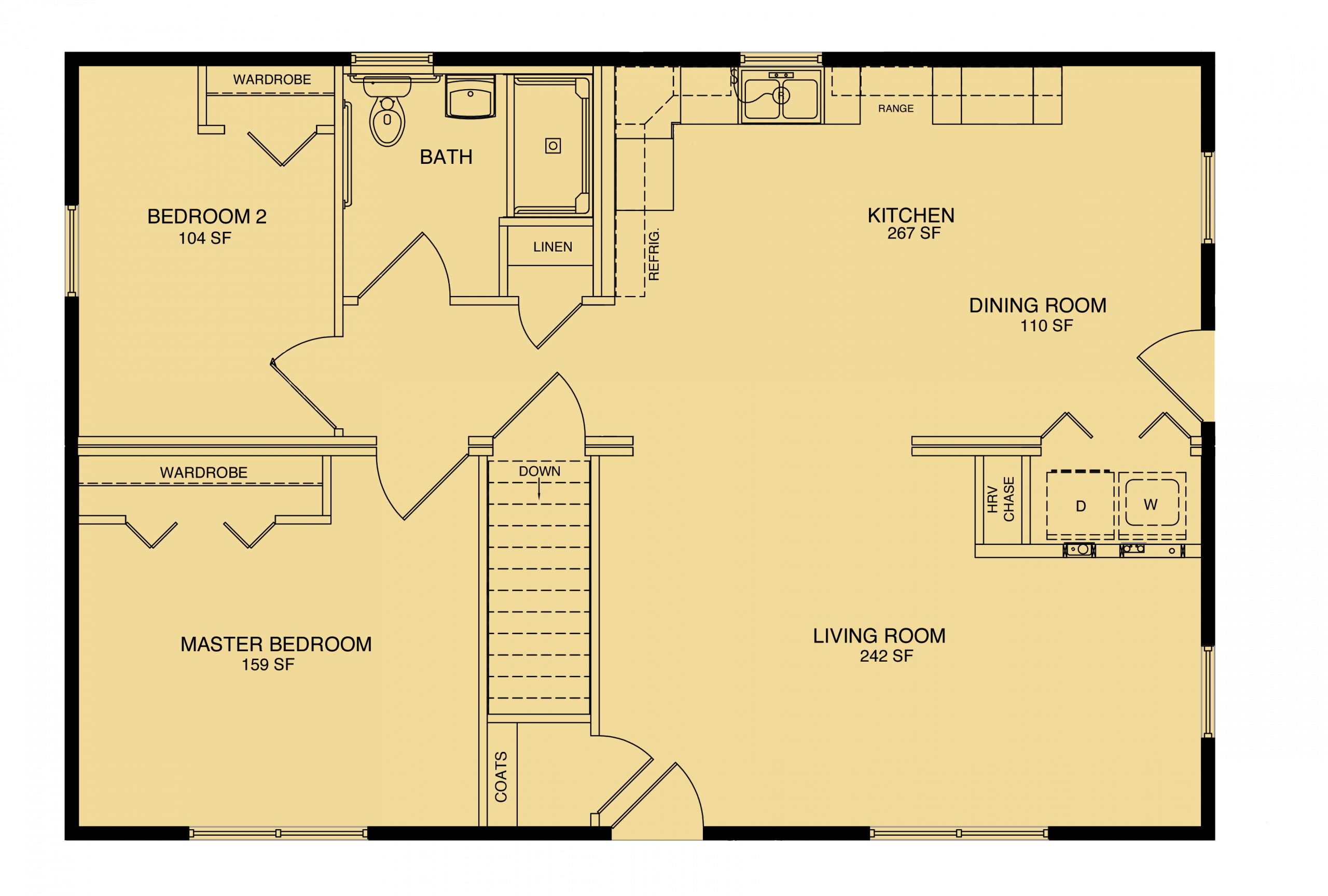
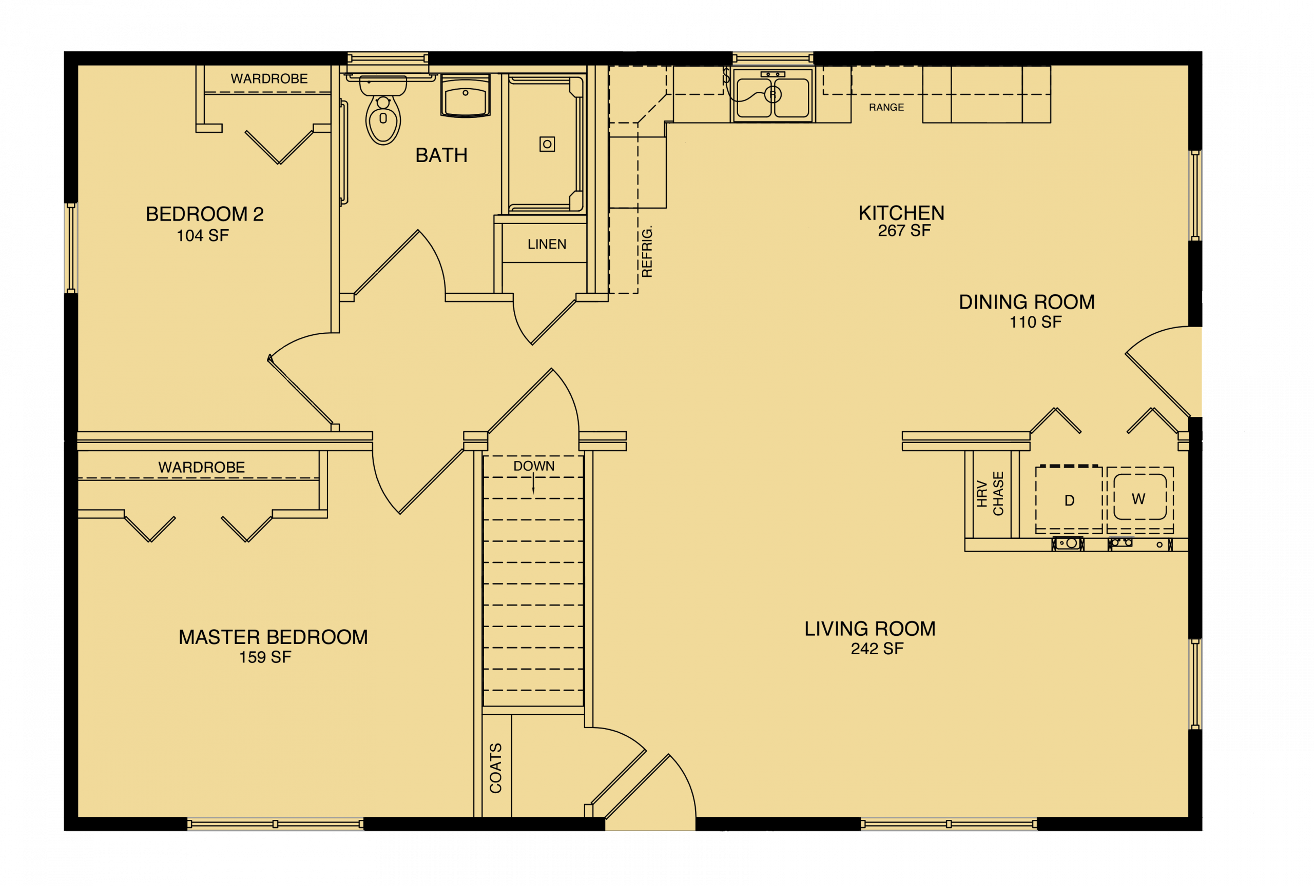
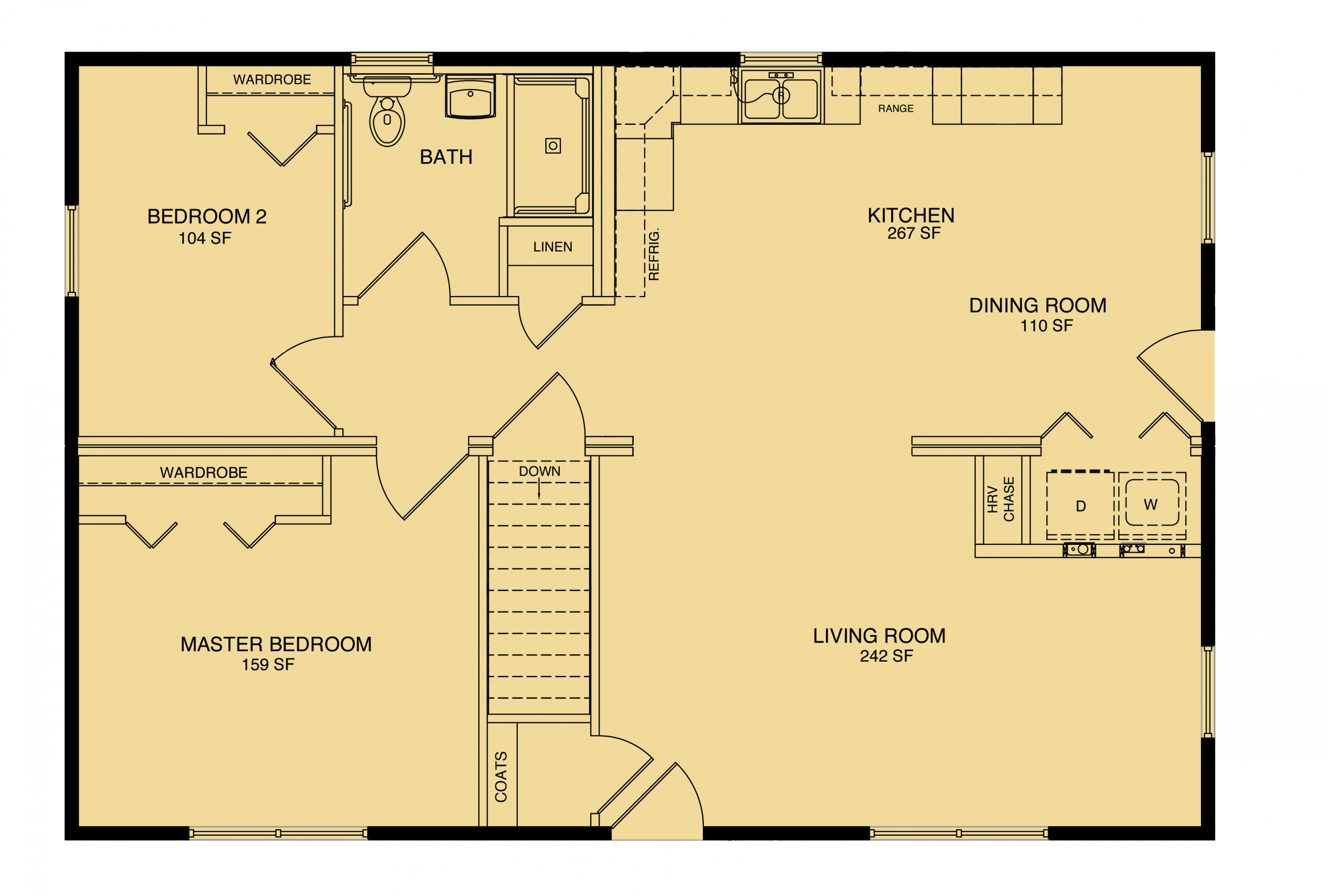
The heart of the Ranch plan is an inviting open-concept layout, blending the kitchen, dining, and living rooms, making it perfect for entertaining family and friends. Its’ cozy two bedrooms share a bathroom with a full-size tub or large shower stall. An unfinished full basement provides future expansion opportunities. The home maximizes functionality with ample storage solutions, ensuring that every square inch is utilized efficiently. This thoughtfully designed plan harmonizes comfort with practicality, making it ideal for modern living.

 
imgi_37_ADU-Saco-Bay-front imgi_38_ADU-Saco-Bay-1floor2 imgi_37_ADU-Saco-Bay-front - Copy imgi_38_ADU-Saco-Bay-1floor2 imgi_37_ADU-Saco-Bay-front imgi_38_ADU-Saco-Bay-1floor2 - Copy

Saco Bay Accessory Dwelling Unit

Specification

Square Foot        850
Bedrooms          1-2
Bathrooms          1
Levels             1

The charming Saco Bay cottage exudes curb appeal with its welcoming covered front porch. Although the home is cozy, the combined dining and living room creates the illusion of a larger space. A sunroom offers additional entertainment space — a garden retreat, gaming room, or use it for a formal dining space. Conveniently, the main bedroom is located adjacent to the only bathroom. Additionally, a den can serve as a home office or even a second bedroom, providing extra space to accommodate any lifestyle needs.